Trilocale in vendita

Sarzana, Via Paolo Diana
€ 234.000
3 locali 3 locali
90 Mq 90 Mq
1 bagno 1 bagno

Trilocale in vendita

Sarzana, Via Paolo Diana

Descrizione annuncio

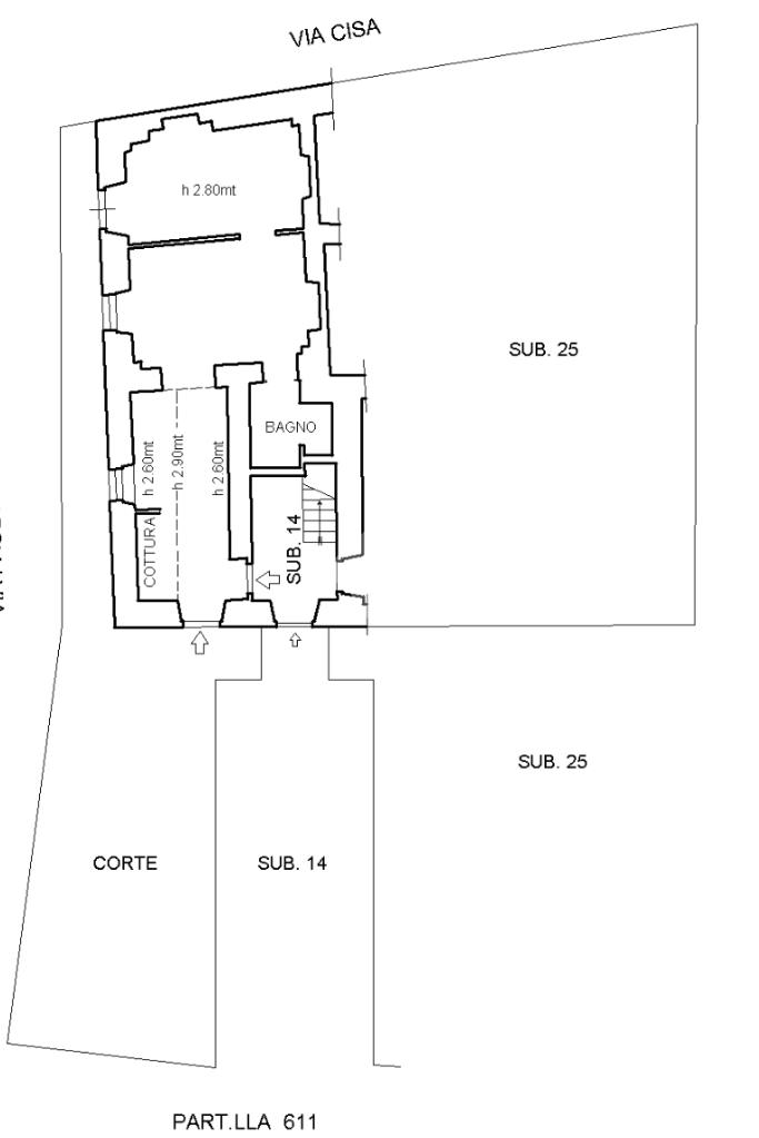
Sarzana - proponiamo in vendita appartamento di tre vani con corte privata e due posti auto.

L’immobile si apre su angolo cottura con sala da pranzo da cui di ha accesso al soggiorno. La zona notte si sviluppa nella camera da letto matrimoniale, posta sul retro dell’abitazione garantendo privacy e silenzio, e dal bagno con box doccia.

Tramite porta finestra posta nella zona giorno si accede direttamente alla corte esterna privata, ideale per pranzi all’aperto e momenti di relax.


La proprietà è completata da due posti auto e da una corte esterna privata, elementi di grande valore e rara reperibilità in zona.

Spese condominiali contenute e riscaldamento autonomo.


L'immobile è posto a pochi passi dal Centro Storico di Sarzana.

Mostra tutto

Nelle vicinanze

Trasporto pubblico Trasporto pubblico
stazione di Sarzana
stazione di Sarzana
970 m
Sarzana
Sarzana
650 m
Trasporto pubblico
830 m
Ricariche auto elettriche Ricariche auto elettriche
Ricarica Multisala Moderno
490 m
COOP CC Centroluna by Duferco
590 m
Scuole Scuole
Liceo Classico scientifico Tommaso Parentucelli
870 m
Scuole
1,0 Km
Scuola elementare Nave
2,0 Km
Ist. Comprensivo Arcola-Ameglia
2,9 Km
Farmacia Farmacia
Farmacia
440 m
Farmacia Castagnini
500 m
Parafarmacia E' Qui
550 m
Farmacia Accorsi
570 m
Piola
820 m
Ospedali Ospedali
Ospedali
340 m
Pronto Soccorso Ospedale "San Bartolomeo"
640 m
Presidio Ospedaliero San Bartolomeo
660 m
Casa della Salute
820 m
Centro Diurno di Sarzana
870 m
Supermercati Supermercati
Ipercoop
520 m
Mercato ortofrutticolo Sarzana
560 m
Centro Luna
560 m
Market Basket
600 m
Conad
760 m
Negozi Negozi
Calzedonia
580 m
Kaukau's
590 m
Alimetari da Gambaran
670 m
Pan e Dozi
740 m
Negozi
760 m
Bar Bar
Bar
440 m
Percento Bar-Centroluna
520 m
Kookami
600 m
Bar Il Cantuccio
600 m
Penny Bar
600 m
Ristoranti Ristoranti
Ristoranti
610 m
IL DiVin Boccone
820 m
La Pia
940 m
La Patatiniera
960 m
Antica Osteria Tre Archi
1,0 Km
Mostra tutto

Caratteristiche

Rif.:
61172418
Piano:
Terra di 3
Totale piani:
3
Posti auto:
2
Camere da letto:
1
Arredamento:
Parziale
Mostra tutto
Prezzo Prezzo
€ 234.000
Rata mutuo Rata mutuo
€ 1.086 / mese
Spese annue Spese annue
€ 500
Proponi il tuo prezzoProponi il tuo prezzo

Classe Energetica

G
G
G
G
G
G
G
G
G
Anno di costruzione:
1900
Riscaldamento:
Autonomo
Tipo impianto:
A radiatori
Tipo alimentazione:
Metano

Ti interessa visionare l'immobile?

Fissa un appuntamento  Fissa un appuntamento

Richiedi informazioni

Clicca su Leggi per aprire l'informativa
* Questi campi sono obbligatori

Calcola il tuo mutuo

Semplice e senza impegno
Anticipo

( % )
Mutuo

( % )

pochi semplici passi

inserisci i tuoi dati
Questionario completato
Grazie per aver richiesto un appuntamento senza impegno con un nostro Consulente del Credito e Assicurativo.

Hai inserito correttamente tutti i dati necessari e a breve riceverai una e-mail con un link da convalidare per inviare i tuoi dati.
Affiliato
Studio Sarzana Srl
Via Mazzini, 71 19038 Sarzana (SP)

Il nostro staff


  • Daniele Toscano
    Responsabile

  • Niccolo Cucurnia
    Collaboratore

  • Sarah Leonardi
    Collaboratrice

  • Raffaele Neri
    Collaboratore

  • Davide Giuseppe Volantini
    Affiliato

  • Desiree Volantini
    Coordinatrice
Via Mazzini, 71 19038 Sarzana (SP)
Zona: Sarzana
Mostra su mappa
Orari: Dal Lunedi al Venerdi dalle 09:00 alle 12:30 e dalle 15.00 alle 19:30 Sabato 09:00 alle 12:30 e dalle 15.00 alle 18.30
Affiliato
Studio Sarzana Srl
Via Mazzini, 71 19038 Sarzana (SP)

2026 Tecnocasa Franchising S.p.A. - P. IVA 08365160152 - Via Monte Bianco 60/A 20089 Rozzano (MI). Ogni agenzia ha un proprio titolare ed è autonoma. Privacy policy | Policy utilizzo | Cookie policy