Quadrilocale in vendita

Sarzana, Via Cisa Traversa I
€ 299.000
Prezzo aggiornato
4 locali 4 locali
100 Mq 100 Mq
2 bagni 2 bagni

Quadrilocale in vendita

Sarzana, Via Cisa Traversa I

Descrizione annuncio

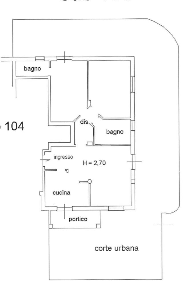
Sarzana - in zona a pochi passi dal centro storico proponiamo in vendita 4 vani con giardino, in palazzina in ordine.


Dall'ingresso tramite il corridoio si accede alla sala da pranzo ed alla cucina abitabile.
Proseguendo tramite disimpegno raggiungiamo la zona notte composta da cameretta, camera matrimoniale con bagno privato e un bagno finestrato dotato di vasca.

Conclude la proprietà un comodo giardino e un posto auto.


Il riscaldamento è autonomo, e le spese condominiali sono contenute.


L'immobile è abitabile fin da subito.


La zona è centrale e comoda ai servizi, siamo adiacenti al centro storico.

Mostra tutto

Nelle vicinanze

Trasporto pubblico Trasporto pubblico
stazione di Sarzana
stazione di Sarzana
750 m
Sarzana
Sarzana
450 m
Trasporto pubblico
690 m
Ricariche auto elettriche Ricariche auto elettriche
Ricarica Multisala Moderno
310 m
COOP CC Centroluna by Duferco
920 m
Scuole Scuole
Liceo Classico scientifico Tommaso Parentucelli
550 m
Scuole
760 m
Scuola elementare Nave
1,7 Km
Farmacia Farmacia
Farmacia Castagnini
230 m
Farmacia Accorsi
510 m
Piola
530 m
Nuova Farmacia dell’Ospedale
630 m
Farmacia
680 m
Ospedali Ospedali
Ospedali
270 m
Casa della Salute
490 m
Pronto Soccorso Ospedale "San Bartolomeo"
900 m
Presidio Ospedaliero San Bartolomeo
920 m
Centro Diurno di Sarzana
1,1 Km
Supermercati Supermercati
Conad
620 m
Market Basket
740 m
Mercato ortofrutticolo Sarzana
850 m
Ipercoop
850 m
Centro Luna
890 m
Negozi Negozi
Calzedonia
290 m
Kaukau's
300 m
Pan e Dozi
450 m
Negozi
490 m
Baixa
490 m
Bar Bar
Penny Bar
350 m
Caffè San Giorgio
380 m
Bar Il Cantuccio
380 m
Bar
460 m
Caffè del Teatro
520 m
Ristoranti Ristoranti
Ristoranti
300 m
IL DiVin Boccone
540 m
La Pia
650 m
La Patatiniera
660 m
Antica Osteria Tre Archi
700 m
Mostra tutto

Caratteristiche

Rif.:
61156577
Piano:
Terra di 5
Totale piani:
5
Posti auto:
1
Camere da letto:
2
Arredamento:
Parziale
Mostra tutto
Prezzo Prezzo
€ 299.000
Rata mutuo Rata mutuo
€ 1.409 / mese
Spese annue Spese annue
€ 300
Proponi il tuo prezzoProponi il tuo prezzo
Immobile valutato con T·Valuta

Classe Energetica

F
F
F
F
F
F
F
F
F
EP invernale del fabbricato:
EP estiva del fabbricato:
Anno di costruzione:
2005
Riscaldamento:
Autonomo
Tipo impianto:
A radiatori
Tipo alimentazione:
Metano

Prezzo ridotto di €1 (1%%)

Ti interessa visionare l'immobile?

Fissa un appuntamento  Fissa un appuntamento

Richiedi informazioni

Clicca su Leggi per aprire l'informativa
* Questi campi sono obbligatori

Calcola il tuo mutuo

Semplice e senza impegno
Anticipo

( % )
Mutuo

( % )

pochi semplici passi

inserisci i tuoi dati
Questionario completato
Grazie per aver richiesto un appuntamento senza impegno con un nostro Consulente del Credito e Assicurativo.

Hai inserito correttamente tutti i dati necessari e a breve riceverai una e-mail con un link da convalidare per inviare i tuoi dati.
Affiliato
Studio Sarzana Srl
Via Mazzini, 71 19038 Sarzana (SP)

Il nostro staff


  • Daniele Toscano
    Affiliato

  • Niccolo Cucurnia
    Collaboratore

  • Sarah Leonardi
    Collaboratrice

  • Raffaele Neri
    Collaboratore

  • Davide Giuseppe Volantini
    Affiliato

  • Desiree Volantini
    Coordinatrice
Via Mazzini, 71 19038 Sarzana (SP)
Zona: Sarzana
Mostra su mappa
Orari: Dal Lunedi al Venerdi dalle 09:00 alle 12:30 e dalle 15.00 alle 19:30 Sabato 09:00 alle 12:30 e dalle 15.00 alle 18.30
Affiliato
Studio Sarzana Srl
Via Mazzini, 71 19038 Sarzana (SP)

2026 Tecnocasa Franchising S.p.A. - P. IVA 08365160152 - Via Monte Bianco 60/A 20089 Rozzano (MI). Ogni agenzia ha un proprio titolare ed è autonoma. Privacy policy | Policy utilizzo | Cookie policy