5 locali in vendita

Ameglia, Via Pisanello
€ 350.000
5 locali 5 locali
144 Mq 144 Mq
1 bagno 1 bagno

5 locali in vendita

Ameglia, Via Pisanello

Descrizione annuncio

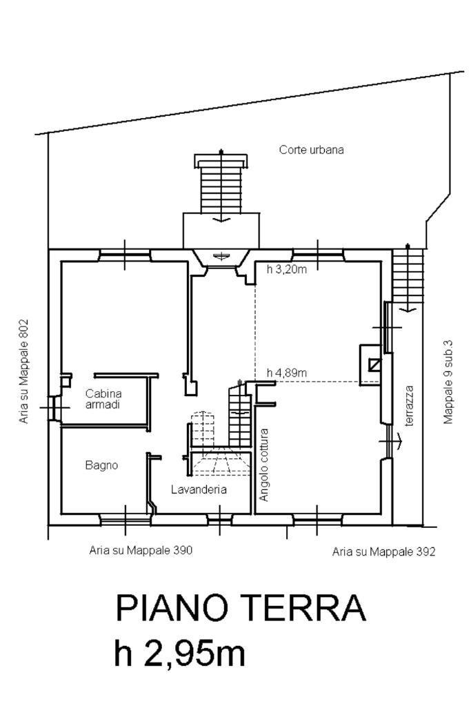
Ameglia - proponiamo in vendita semindipendente di cinque vani, a piano rialzato, su due livelli, con corte esterna.

L'interno si apre su un luminoso e ampio soggiorno open-space dotato di camino,tramite disimpegno si ha l'accesso alla camera da letto matrimoniale con cabina armadio, ad ampio bagno finestrato e un locale lavanderia. Infine tramite scala interna si raggiunge il soppalco mansardato e finestrato, nel quale si può ricavare una seconda camera.

La soluzione non ha posto auto in quanto è un piano rialzato, ma ha in dotazione una comoda corte esterna e un balconcino dal quale si può accedere alla cucina.

L'abitazione è stata ristrutturata recentemente ed è situata in una zona traquilla e comoda ai servizi.

Mostra tutto

Nelle vicinanze

Trasporto pubblico Trasporto pubblico
Trasporto pubblico
2,2 Km
Ricariche auto elettriche Ricariche auto elettriche
Metanauto Sarzanese
1,6 Km
Scuole Scuole
Scuole
2,3 Km
Farmacia Farmacia
Farmacia
270 m
Supermercati Supermercati
Carrefour Express
100 m
Negozi Negozi
Apicoltura Ferti
2,0 Km
Negozi
2,4 Km
Bar Bar
Bar and Restaurant Moor
1,7 Km
Bar
2,6 Km
Ristoranti Ristoranti
Corte di Camisano
780 m
Pescarino
2,0 Km
L'Ibisco
2,2 Km
La Lucerna di ferro
2,3 Km
Il Pilota
2,4 Km
Mostra tutto

Caratteristiche

Rif.:
61162860
Piano:
1 di 2 (Piano rialzato)
Balconi:
1
Camere da letto:
2
Arredamento:
Parziale
Condizionamento:
Autonomo
Mostra tutto
Prezzo Prezzo
€ 350.000
Rata mutuo Rata mutuo
€ 1.624 / mese
Spese annue Spese annue
€ 0
Proponi il tuo prezzoProponi il tuo prezzo

Classe Energetica

D
D
D
D
D
D
D
D
D
Anno di costruzione:
1980
Riscaldamento:
Autonomo
Tipo impianto:
A pavimento
Tipo alimentazione:
Metano

Ti interessa visionare l'immobile?

Fissa un appuntamento  Fissa un appuntamento

Richiedi informazioni

Clicca su Leggi per aprire l'informativa
* Questi campi sono obbligatori

Calcola il tuo mutuo

Semplice e senza impegno
Anticipo

( % )
Mutuo

( % )

pochi semplici passi

inserisci i tuoi dati
Questionario completato
Grazie per aver richiesto un appuntamento senza impegno con un nostro Consulente del Credito e Assicurativo.

Hai inserito correttamente tutti i dati necessari e a breve riceverai una e-mail con un link da convalidare per inviare i tuoi dati.
Affiliato
Studio Sarzana Srl
Via Mazzini, 71 19038 Sarzana (SP)

Il nostro staff


  • Daniele Toscano
    Responsabile

  • Niccolo Cucurnia
    Collaboratore

  • Sarah Leonardi
    Collaboratrice

  • Raffaele Neri
    Collaboratore

  • Davide Giuseppe Volantini
    Affiliato

  • Desiree Volantini
    Coordinatrice
Via Mazzini, 71 19038 Sarzana (SP)
Zona: Sarzana
Mostra su mappa
Orari: Dal Lunedi al Venerdi dalle 09:00 alle 12:30 e dalle 15.00 alle 19:30 Sabato 09:00 alle 12:30 e dalle 15.00 alle 18.30
Affiliato
Studio Sarzana Srl
Via Mazzini, 71 19038 Sarzana (SP)

2026 Tecnocasa Franchising S.p.A. - P. IVA 08365160152 - Via Monte Bianco 60/A 20089 Rozzano (MI). Ogni agenzia ha un proprio titolare ed è autonoma. Privacy policy | Policy utilizzo | Cookie policy